Przestronne 4-pokojowe mieszkanie w sercu Kartuz –

Mieszkanie na sprzedaż
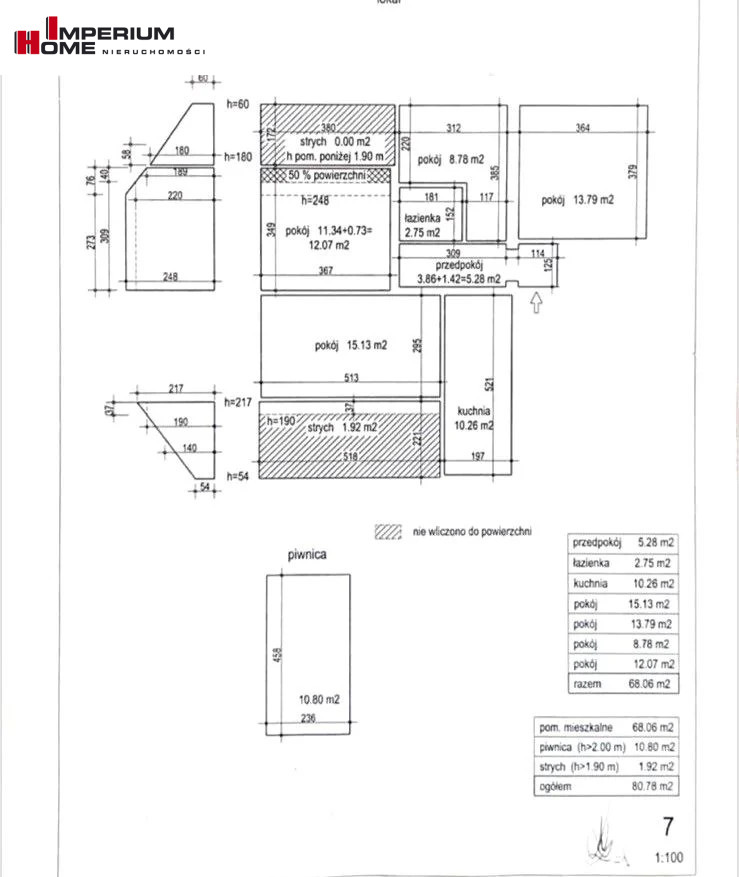
548 000,00 PLN, Pow. 68,06 m2
Drukuj ofertę
Drukuj ofertę
Typ nieruchomości:
Mieszkanie
Powierzchnia:
68,06 m2
Typ transakcji:
sprzedaż
Liczba pokoi:
4
Lokalizacja:
Kartuzy , dr. Aleksandra Majkowskiego
Rok budowy:
1960
Piętro:
3 na 3
Numer oferty:
615031
Cena za m2:
8 051,72 PLN
Oferuję na sprzedaż przestronne i funkcjonalne mieszkanie o powierzchni 68,06 m², położone na 3. piętrze budynku mieszkalnego. Lokal wyróżnia się przemyślanym układem pomieszczeń oraz dużą ilością dodatkowej przestrzeni do przechowywania, co czyni go doskonałą propozycją dla rodziny lub osób poszukujących komfortowego miejsca do życia.
Mieszkanie składa się z czterech niezależnych pokoi o powierzchniach:  15,13 m², 13,79 m², 
12,07 m², 8,78 m²
Każdy z pokoi daje szerokie możliwości aranżacyjne - od sypialni i pokoju dziecięcego, po gabinet lub przestrzeń do pracy zdalnej.
Oddzielna kuchnia o powierzchni 10,26 m² została uzupełniona o praktyczną spiżarnię / pomieszczenie do przechowywania o powierzchni 11,5 m², zlokalizowane w podłodze - rozwiązanie niezwykle rzadkie i bardzo funkcjonalne.

Dodatkowo w skład mieszkania wchodzą:
* łazienka - 2,75 m²
* korytarz - 5,28 m²
* pomieszczenie do przechowywania w podłodze - 6,5 m²

Do lokalu przynależy również komórka lokatorska o powierzchni 10,80 m², zapewniająca wygodne miejsce na przechowywanie rzeczy sezonowych lub sprzętu.

Mieszkanie jest po remoncie i gotowe do zamieszkania bez dodatkowych nakładów finansowych. Ogrzewanie gazowe z nowym piecem zapewnia niezależność oraz pełną kontrolę nad kosztami utrzymania. Niskie opłaty eksploatacyjne dodatkowo podnoszą atrakcyjność tej nieruchomości.

Opłaty:
* czynsz oraz fundusz remontowy - 370 zł
* ogrzewanie gazowe w okresie zimowym - około 350 zł
* prąd - według zużycia

Budynek położony jest na zamkniętym podwórku z dostępnymi miejscami postojowymi, co zapewnia mieszkańcom spokój i poczucie bezpieczeństwa. Dla osób zmotoryzowanych istnieje możliwość zakupu murowanego, wolnostojącego garażu na terenie posesji.
Cena garażu: 55 000 zł (zakup nieobowiązkowy).

Lokalizacja to jeden z największych atutów tej oferty. W zasięgu kilku minut spaceru znajdują się szkoły, przedszkola, sklepy, dworzec PKM, liczne punkty usługowe, przychodnia, apteka oraz tereny rekreacyjne. To miejsce, w którym codzienne sprawy można załatwić bez pośpiechu i bez konieczności korzystania z samochodu.

To mieszkanie łączy w sobie komfort, funkcjonalność oraz doskonałe położenie.
Zapraszam do kontaktu i umówienia się na prezentację.
Nieprawidłowy adres E-mail